Italian Viking
back next
Content Area 3A - EARLY EUROPE & COLONIAL AMERICAS
BACK NEXT
Title:____ Catacomb of Priscilla (Greek Chapel)
Culture:____ Early Christian
Year:____ 200-400
Materials:____ excavated tufa and fresco
Location:____ Rome, Italy
Title:____ Catacomb of Priscilla (Orant Fresco)
Culture:____ Early Christian
Year:____ 200-400
Materials:____ excavated tufa and fresco
Location:____ Rome, Italy
Title:____ Catacomb of Priscilla (Good Shepherd fresco)
Culture:____ Early Christian
Year:____ 200-400
Materials:____ excavated tufa and fresco
Location:____ Rome, Italy
Title:____ Santa Sabina
Culture:____ Early Christian  
Year:____ 422-432
Materials:____ brick and stone, wooden roof
Location:____ Rome, Italy
Title:____ Santa Sabina
Culture:____ Early Christian
Year:____ 422-432
Materials:____ brick and stone, wooden roof
Location:____ Rome, Italy
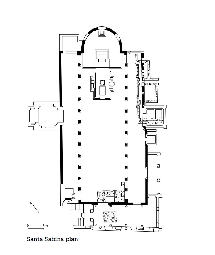
Title:____ Santa Sabina (plan)
Culture:____ Early Christian  
Year:____ 422-432
Materials:____ brick and stone, wooden roof
Location:____ Rome, Italy
Title:____ Rebecca & Eliezer at the Well (from the Vienna Genesis)
Culture:____ Early Byzantine
Year:____ 6th century
Materials:____ illuminated manuscript (tempera, gold and silver on purple vellum)
  
Title:____ Jacob Wrestling the Angel (from the Vienna Genesis)
Culture:____ Early Byzantine
Year:____ 6th century
Materials:____ illuminated manuscript (tempera, gold and silver on purple vellum)
  
Title:____ San Vitale
Culture:____ Early Byzantine
Year:____ 526-547
Materials:____ brick, marble and stone veneer, mosaic
Location:____ Ravenna, Italy
Title:____ San Vitale
Culture:____ Early Byzantine
Year:____ 526-547
Materials:____ brick, marble and stone veneer, mosaic
Location:____ Ravenna, Italy
Title:____ Justinian Panel (in San Vitale)
Culture:____ Early Byzantine
Year:____ 526-547
Materials:____ mosaic
Location:____ Ravenna, Italy
Title:____ Theodora panel (in San Vitale)
Culture:____ Early Byzantine
Year:____ 526-547
Materials:____ mosaic
Location:____ Ravenna, Italy
Title:____ San Vitale (plan)
Culture:____ Early Byzantine
Year:____ 526-547
Materials:____ plan
Location:____ Ravenna, Italy
Title:____ Hagia Sophia
Artist:____ Anthemius & Isidorus
Period:____ Byzantine 
Year:____ 532-537
Materials:____ brick and ceramic elements with stone and mosaic veneer
Location:____ Constantinople
Title:____ Hagia Sophia
Artist:____ Anthemius & Isidorus
Period:____ Byzantine
Year:____ 532-537
Materials:____ brick and ceramic elements with stone and mosaic veneer
Location:____ Constantinople
Title:____ Hagia Sophia
Artist:____ Anthemius & Isidorus
Period:____ Byzantine
Year:____ 532-537
Materials:____ brick and ceramic elements with stone and mosaic veneer
Location:____ Constantinople
Title:____ Merovingian looped fibulae
Culture:____ Early Medieval
Year:____ sixth-century
Materials:____ silver gilt filigree, inlaid garnets and other stones
  
Title:____ Virgin (Theotokos) and Child between St Theodore & St. George
Culture:____ Early Byzantine
Year:____ sixth or seventh century
Materials:____ encaustic on wood
  
Title:____ Lindisfarne Gospels (St. Matthew, cross-carpet page)
Culture:____ Early Medieval
Year:____ 700
Materials:____ illuminated manuscript (ink, pigments and gold on vellum)
  
Title:____ Lindisfarne Gospels (St. Luke, portrait page)
Culture:____ Early Medieval
Year:____ 700
Materials:____ illuminated manuscript (ink, pigments and gold on vellum)
  
Title:____ Lindisfarne Gospels (St. Luke incipit page)
Culture:____ Early Medieval
Year:____ 700
Materials:____ illuminated manuscript (ink, pigments and gold on vellum)
Location:____
Title:____ Great Mosque
Culture:____ Islamic  
Year:____ 785-786
Materials:____ stone masonry
Location:____ Cordoba, Spain
Title:____ Great Mosque
Culture:____ Islamic  
Year:____ 785-786
Materials:____ stone masonry
Location:____ Cordoba, Spain
Title:____ Great Mosque (detail)
Culture:____ Islamic  
Year:____ 785-786
Materials:____ stone masonry
Location:____ Cordoba, Spain
Title:____ Great Mosque (arches)
Culture:____ Islamic  
Year:____ 785-786
Materials:____ stone masonry
Location:____ Cordoba, Spain
Title:____ Great Mosque (plan)
Culture:____ Islamic  
Year:____ 785-786
Materials:____ stone masonry
Location:____ Cordoba, Spain
Title:____ Pyxis of al-Mughira
Culture:____ Islamic  
Year:____ 968
Materials:____ ivory
  
Title:____ Church of Sainte-Foy
Culture:____ Romanesque  
Year:____ 1050-1130
Materials:____ stone (architecture)
Location:____ France
Title:____ Church of Sainte-Foy (the Last Judgment) 
Culture:____ Romanesque  
Year:____ 1050-1130
Materials:____ stone and paint
Location:____ France
Title:____ Church of Sainte-Foy
Culture:____ Romanesque  
Year:____ 1050-1130
Materials:____ stone
Location:____ France
Title:____ Reliquary of Sainte-Foy
Culture:____ Romanesque  
Year:____ 1050-1130
Materials:____ gold, silver, gemstones and enamel over wood
  
Title:____ Bayeux Tapestry (Cavalry Attack)
Culture:____ Romanesque
Year:____ 1066-1080
Materials:____ embroidery on linen
  
Title:____ Bayeux Tapestry (First Meal)
Culture:____ Romanesque
Year:____ 1066-1080
Materials:____ embroidery on linen
  
BACK NEXT